Sanierung denkmalgeschütztes Mehrfamilienhaus, 2019-2021
Direktauftrag
Private Bauherrschaft
Sämtliche Leistungen nach SIA
Bauingenieur Normal Office, Fribourg
Bauphysik Marc Rüfenacht Bauphysik Energie, Bern
Farbuntersuchung Rettenmund AG, Bern
Bilder Nicolas Delaroche
Das erhaltenswerte Doppelmehrfamilienhaus in der Länggasse Bern wurde 1908 von den Architekten Joss & Klauser erbaut und gehört zur Baugruppe Enge, eine Anzahl von gutsituierten Bürgerhäusern und Villen entlang der Daxelhofer- und der Diesbachstrasse. Die Bauten weisen Elemente des romantischen Historismus auf, welche mit Elementen des Jugendstils und des sich daraus entwickelten Heimatstils überlagert wurden.
Der asymmetrische Bau an der Diesbachstrasse mit seiner repräsentativen Nordfassade weist bei der Nr. 29 als Hauptelement einen halbrunden Treppenturm mit geschweiftem Kupferhelm auf. Der Eingangsvorscherm in Form eines mächtigen Quergiebels durchdringt links den Treppenturm und stützt sich rechts auf einer dorischen Säule ab. Die Ost- und Westfassaden sind charakterisiert durch grosszügige Teilwalmquergiebel.*
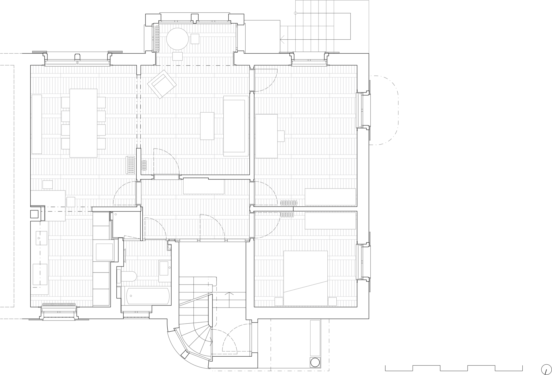
Die Sanierung konzentrierte sich auf den Gebäudeteil Nr. 29.
Fassade und Dach wurden nach denkmalpflegerischen Vorgaben saniert. Das Dach wurde von aussen gedämmt und mit einer Solarthermieanlage ausgerüstet. Die Biberschwanzziegel wurden sofern in einem guten Zustand wiederverwendet und mit neuen Ziegeln vermischt. Die Kupfereindeckungen wurden neu erstellt mit Ausnahme des Zwiebeldaches des Treppenturms. Die Fenster wurden nach altem Sprossenbild ersetzt, Wohnungstüren und Haustüre wurden teilweise aus brandschutz- und energetischen Gründen aufgedoppelt, jedoch in ihrem Ausdruck erhalten.
Defekte und abgebrochene Steingewände und die ursprüngliche Farbigkeit der Fassaden wurden wieder hergestellt. Die alten teils defekten Fensterläden wurden mit neuen holzigen nach historischem Vorbild nachgebauten Läden ersetzt. Metallrolladen, welche aus den 70er oder 80er Jahren stammen, wurden durch Stoffrollos ersetzt.
Zwei von drei Wohnungen wurden komplett saniert.
Historische Winkelfriestafeln aus Massivparkett wurden sorgfältig demontiert, nummeriert, umrandet und wieder neu verlegt mit angepasstem umlaufendem Wandfries. Wo historische Parkettböden nicht mehr vorhanden waren, wurde ein neuer Massivparkett aus Eichen im Leiterstil verlegt. Die teils nicht mehr vorhandenen Sockelbretter wurden nachgebaut.
Die Grundrisse der Wohnungen im Erdgeschoss und Obergeschoss wurden nur wenig verändert. Neue Öffnungen lassen die Raumtiefe spürbar erleben und sorgen für einen spannenden Raumfluss.
Die sanitären Anlagen und die Küchen wurden komplett erneuert.
Die Küchenarbeitsfläche in der Erdgeschosswohnung wurde mit einem Sandstein aus dem Gurtensteinbruch belegt. Der Sandstein wurde von der Bauherrschaft eigens ausgewählt und anschliessend in zwei Teile getrennt und in mehreren Arbeitsschritten imprägniert.
Der Ersatz der Ölheizung ist in einer zweiten Bauetappe vorgesehen. Die Solarthermieanlage auf dem Dach erwärmt das Warmwasser und wird in einem 1400L Stahltank gespeichert. Geheizt wird mit den historischen Heizkörpern, welche alle noch funktionstüchtig waren. Sie wurden lediglich sorgfältig von Hand geschliffen und neu gestrichen.
Die energetische Sanierung wurde spezifisch auf die vorhandenen Gegebenheiten angepasst. Bestehendes wurde erhalten und sorgfältig restauriert, neue Elemente sind bewusst als Zeitgenössisch identifiziert und sichtbar gemacht worden.
Die Wände sind neutral in einem gebrochenen Weiss gehalten. Das Holzwerk wurde entgegen seiner ursprünglich blaugrauen Farbe in einem warmen Hellgrau gestrichen. Die Küche ist in einem warmen Grünton gehalten, passend zum Sandstein. Die Griffe wurden passend zum Eichenparkett und zu den bestehenden Eichenfensterbrettern einzeln spezifisch für dieses Projekt aus Eichenholz gesägt.
*Quelle: Bauinventar, Denkmalpflege der Stadt Bern, Christoph Schläppi, 1988
Beteiligte Unternehmen
Baumeisterarbeiten Bucher Bau, Liebefeld
Instandsetzung Mauerwerk/Beton mbt, Ortschwaben
Instandsetzung Stein Merz Baulösungen, Stettlen
Kanalisationsarbeiten ARPE AG, Belp
Gerüstbau ELAG Gerüst AG, Bern
Schadstoffsanierung Wirz AG
Fensterbau Tüscher Schreinerei AG
Spengler und Bedachungsarbeiten Peter Künzi AG, Ittigen, K.W. Weyermann AG, Bern
Elektroarbeiten Stoller Elektro, Niederwangen
Heizung BG Tech, Bolligen
Solarthermieanlage GLP Thörishaus und Jenni Energietechnik, Burgdorf
Sanitärarbeiten PG Tech, Gümligen
Äussere Abschlüsse Schenker Storen, Bern und Rolladen Senn AG, Bern
Dämmungen ISO-Bau, Bern
Gipser/Malerarbeiten Garbani AG, Bern
Fassadenarbeiten Garbani AG, Bern
Metallbauarbeiten AG51, Mühleberg
Schreinerarbeiten, Küchenbau Dürig + Völkel, Bern
Instandsetzung Türen Dürig + Völkel, Bern, Baumann + Eggimann, Zäziwil
Parkett Dürig + Völkel, Bern
Keramische Beläge Blatter AG, Bern
Abdichtungen Merz Baulösungen
Baureinigung Dani Transporte, Slavi, Bern, MSS Reinigungen, Ittigen







































