Remise Biel-Vingelz, 2022-2023
Direktauftrag
private Bauherrschaft
alle Phasen nach SIA
Zusammenarbeit mit:
Normal Office, ingénieurs, Fribourg
Rüti Holzbau, Rüti b. Büren
Michèle Büschi, photographe
Die Bauherrschaft wünschte sich eine Remise, welche unterschiedlich genutzt werden konnte. Hauptsächlich soll die Remise als Unterstand für Fahrräder dienen, aber auch als Atelierwerkstatt und Stauraum für Wintermaterial.
Die Situation am Hang an einer Zubringerstrasse, Baulinien und die Grenzabstände erlaubten wenig Spielraum für die Setzung der Remise.
Schliesslich wurde die Position halb-auskragend über einer Stützmauer von der Baubehörde als einzige mögliche Variante akzeptiert.
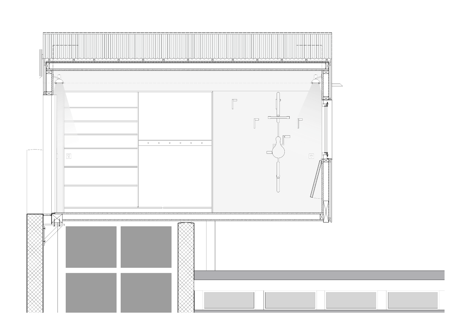
Die Remise wurde konsequent als einfaches Nebengebäude, aber mit hohem Detailierungsgrad konzipiert.
Das einfache Volumen mit Satteldach lehnt sich formal an die Bootshäuser der Umgebung und an die Unterstände in den Weinbergen an. Bis und mit Unterdachfolie wurden die acht Elemente in der Werkstatt des Holzbauers vorgefertigt. Die gewellten Aluminiumbleche wurden erst vor Ort montiert, da sie sonst beim Transport wären beschädigt worden.
Statik und Materialisierung beeinflussten den Entwurfsprozess bereits in einer frühen Phase. Zuerst wurde eine Stahlvariante geprüft, da die einzig möglichen Auflagerpunkte zwei Stützmauern waren. Das Volumen hätte komplett in der Werkstatt produziert werden sollen. Auf die Variante Stahl wurde dann aber verzichtet, weil das Volumen für den Transport auf der Zufahrtsstrasse zu breit gewesen wäre. Mit einem engen Raster aus Holzbalken, beidseitig verkleidet und versteift mit Dreischichtplatten, konnte die Statik schlussendlich gewährleistet werden. Die Seitenwände tragen die Bodenelemente. Wie eine Waage liegt das Gebäude mittig auf einer Stützmauer auf und ist nur hangseitig mit Stahlkonsolen an einer weiteren Stützmauer befestigt.
Holz wurde auch für die Innenverkleidungen und die Einbauten gewählt. Sie bestehen aus geölten Dreischichtplatten. Die Bauherrschaft legte berufsbedingt viel Wert auf Details, was für eine einfache Remise nicht selbstverständlich ist. Die asymmetrischen Doppelflügeltore aus Metall mit Holzausfachungen wurden eigens entwickelt, so dass die Fassadenbleche exakt vertikal übereinander liegen. Die Einbauschränke und der abklappbare Arbeitstisch wurden gemeinsam mit dem Holzbauer entworfen.






































