Zusammenarbeit mit bbz Landschaftsarchitekten und WAM Planer und Ingenieure
Visualisierungen von Atelier Brunecky
Modell von Wenger Modellbau
Städtebau und Setzung
Die Setzung des Neubaus entlang der westlichen Parzellengrenze berücksichtigt den Ausblickins Tal des Bestandes sowie den Erhalt des angrenzenden Parks. Das Gebäude der Demenzabteilung ersetzt das bestehende Pfarrhaus und schafft hochwertige, offene Aussenräume. Das Sockelgeschoss, welches sich bis vor den Bestandesbau schiebt, klärt die Ankunftssituation für Bewohnerinnen, Besucher, Personal und Lieferdienste. Es fungiertsowohl räumlich als auch funktional als verbindendes Element zwischen Neu – und Altbau. Entlang der Südfassade werden die Kellerräume des Bestandes mit einem neuen Gang erschlossen und gegen Osten zu einem Parking erweitert, dadurch wird die Logistik zwischen Neu – und Altbau effizient gestaltet. Auf der Oberfläche des Sockelgeschosses befindet sich der grosszügige Mehrgenerationenplatz.
Aussenräume
Die Neugestaltung und Aufwertung der verschiedenen Perimeter bietet die Möglichkeit, bislang getrennte Bereiche miteinander in Beziehung zu setzen und als einheitliches Ganzes zu formen. Ein durchgängig barrierefreier Natursteinbelag fasst die verschiedenen Räume zusammen und schafft so eine Verbindung der gemeinsam genutzten Freiräume. Der zentral gelegene Park sowie der Kirchplatz dienen als Begegnungs- und Erholungsräume, fördern den sozialen Austausch und ermöglichen altersübergreifende Aktivitäten. Naturnahe Gestaltungselemente wie Sitzbereiche, Spiel- und Bewegungszonen sowie eine Wasserfläche mit Retentionsfunktion verbinden Aufenthaltsqualität mit ökologischer Wirkung.
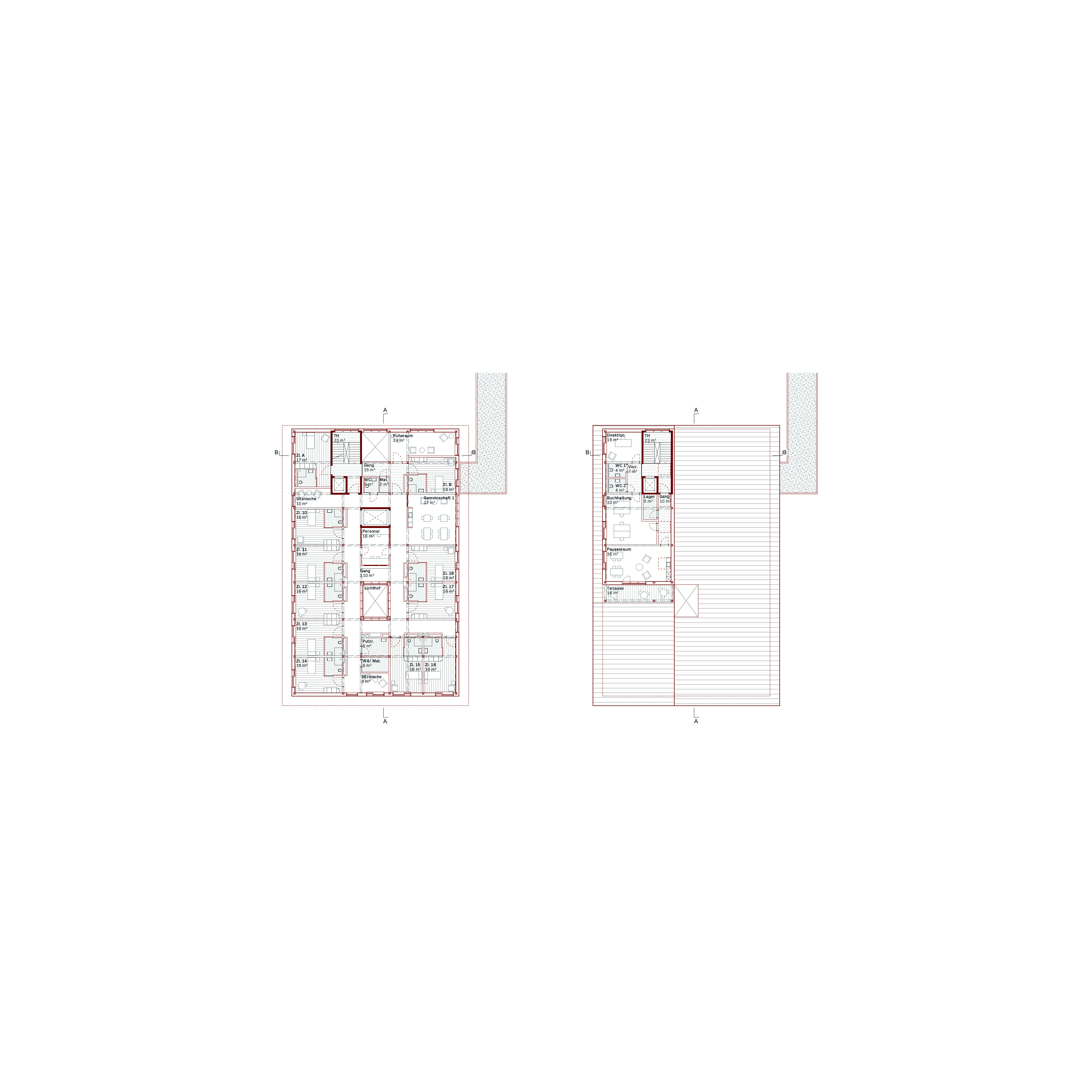
Architektonische Konzept
Im Sockelgeschoss verknüpft ein unterirdischer Gang mit Oberlichtern beide Gebäudeteile. Die Raumstruktur ist funktional gegliedert: Das Erdgeschoss und das erste Obergeschoss beherbergen Tages- und Nachtstruktur sowie die Demenzabteilung. Im zweiten Obergeschoss befinden sich Verwaltungsräume und ein Aufenthaltsraum für das Personal. Die Demenzabteilung ist um einen zentralen Gang organisiert, der als erweiterter Aufenthaltsbereich dient und über einen Lichthof Tageslicht erhält. Sitznischen an den Zimmerzugängen sowie an den Gangenden schaffen ruhige Rückzugsorte mit Ausblick. Der Personalraum liegt in Nähe von Treppe und Bettenlift und ermöglicht durch den Lichthof Sichtbeziehungen zu allen Zimmern und dem Gemeinschaftsbereichen.











